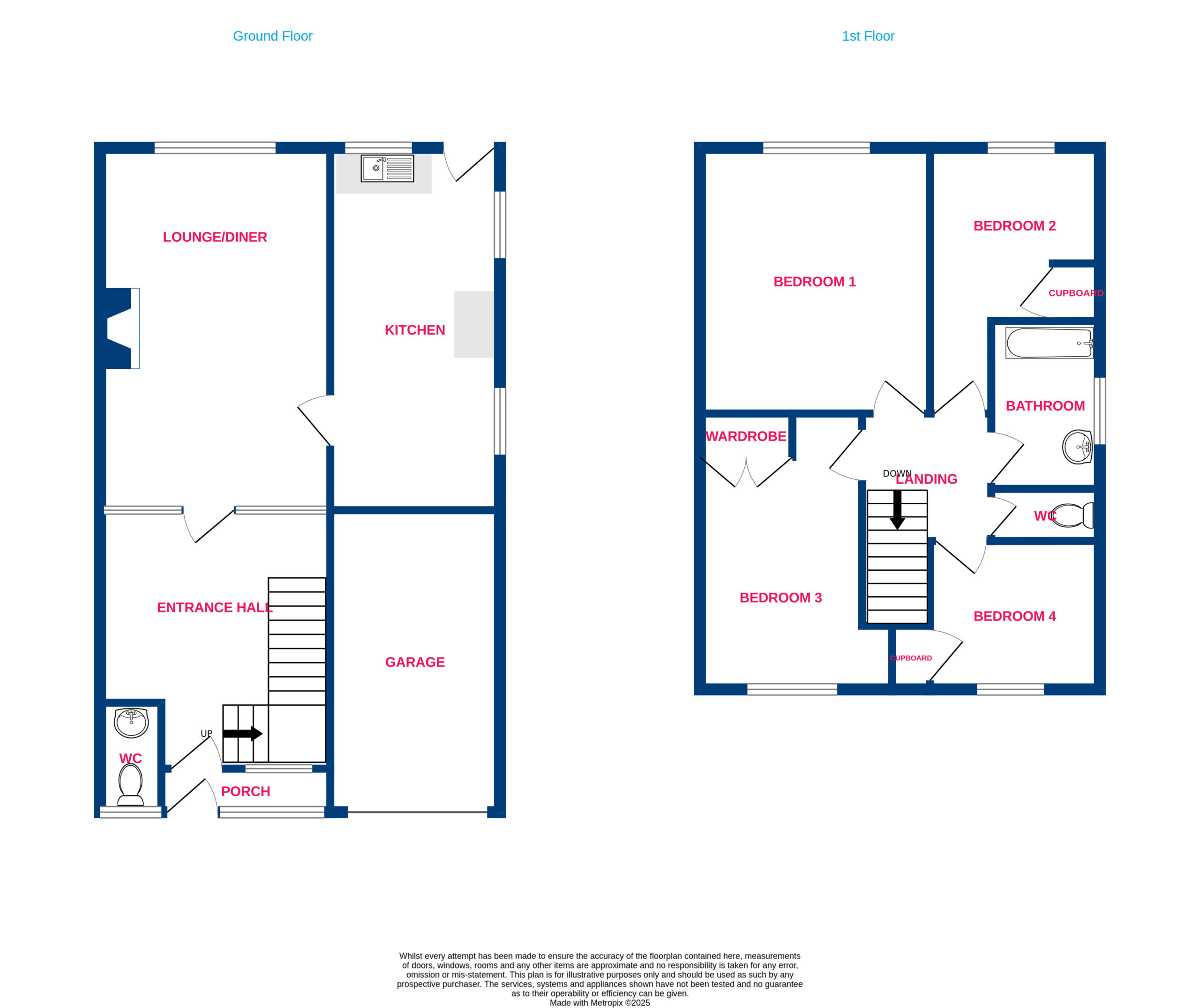
Property Features
- Entrance Hall 12'9 x 11'4
- W/C 3 x 5'5
- Lounge/Diner 18'3 x 11'4
- Kitchen 8'4 x 17'10
- Bedroom One 11'3 x 13'1
- Bedroom Two 8'5 x 12'7
- Bedroom Three 8 x 13'7
- Bedroom Four 8'5 x 7'2
- Bathroom 8'3 x 5'4
- W/C Upstairs 2'7 x 5'3
Pleasantly located in a sought-after area of Wickford is this FOUR bedroom semi-detached house in the Bromfords area. Internally this spacious home offers tremendous scope for a buyer as it can be updated to your particular taste and has fantastic potential to extend due to neighbouring homes having done the same. Downstairs hosts extremely large entrance hall housing the stairs and W/C a roomy lounge/Diner and great-sized kitchen overlooking the gigantic rear garden. Upstairs offers FOUR bedrooms and family bathroom with further W/C. Externally the property sits on a plot size of approx. 0.13 acres with a south facing rear garden along with a driveway and internal garage. A viewing comes highly recommended to see the area it is situated and the potential on offer, call now to arrange your viewing. NO ONWARD CHAIN!
Location Map
Mortgage calculator
Stamp Duty calculator
Call me back:
Have any mortgage enquiries? Submit a call back request, and a member of the Temme English team will get back to you as soon as possible
