Highlands Road, Bowers Gifford, SS13
Property Features
- Chain Free
- Over 2,461 sq. ft. (228.82 sq. m) of accommodation
- Five Generously Sized Bedrooms
- Two Spacious Sitting Rooms
- Dedicated Cinema Room
- Walk-In Pantry & Wine Cooler
- Ground Floor Bedroom with En-Suite
- Built-In Private Swimming Pool
- East-Facing Rear Garden (Over 70')
- Outhouse with Home Office/Gym Potential
Temme English are delighted to present this substantial and beautifully maintained five bedroom executive family home, offered to the market with no onward chain.
Extending to approximately 2,461 sq. ft. 228.82 sq. m, this impressive residence provides expansive and highly versatile accommodation, perfectly suited to modern family life. Thoughtfully designed for both everyday living and entertaining, the property combines generous proportions with a range of standout lifestyle features.
The heart of the home is a spacious principal living area which flows seamlessly into a bright conservatory, creating a wonderful space for relaxing or hosting guests. In addition, there are two separate sitting rooms, offering flexibility for formal entertaining, a family lounge, playroom or home workspace.
A particular highlight is the dedicated cinema room, providing a superb private entertainment space ideal for movie nights and gaming. Wine enthusiasts will also appreciate the rare addition of a walk in pantry & wine cooler, designed to ensure optimal storage conditions.
The ground floor further benefits from a double bedroom with en suite, making it ideal for guests, older relatives or multigenerational living.
Upstairs, the remaining bedrooms are generously sized and served by well appointed bathrooms, offering comfort and practicality for growing families.
Externally, the property continues to impress. The east facing rear garden extends in excess of 70 feet, featuring a lawn and decked entertaining area. The built in swimming pool creates a private leisure retreat, perfect for summer gatherings, relaxation and fitness.
An additional outhouse provides excellent potential for a home office, gym, studio or additional living space.
To the front, ample off street parking allows space for multiple vehicles, adding both convenience and security.
Previously approved planning permission further enhances the long term potential of this already substantial home, offering exciting scope for future extension or reconfiguration, subject to renewal where required.
This exceptional property combines size, flexibility and lifestyle features in a highly desirable setting. Early viewing is strongly recommended.
Chain Free
Over 2,461 sq. ft. (228.82 sq. m) of accommodation
Five Generously Sized Bedrooms
Two Spacious Sitting Rooms
Dedicated Cinema Room
Walk-In Pantry & Wine Cooler
Ground Floor Bedroom with En-Suite
Built-In Private Swimming Pool
East-Facing Rear Garden (Over 70')
Outhouse with Home Office/Gym Potential
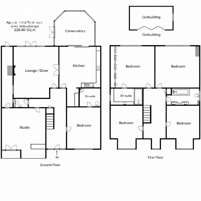
Room Measurements:
Ground Floor
Hallway 21'4 x 7'2 (6.50m x 2.18m)
Downstairs Bedroom 13'10 x 11'3 (4.22m x 3.43m)
En Suite 6'3 x 6'2 (1.91m x 1.88m)
Garage Cinema Room 16'7 x 14'5 (5.05m x 4.39m)
Living Room 18'6 x 15'9 (5.64m x 4.80m)
Kitchen 15'3 x 14'5 (4.65m x 4.39m)
Conservatory 14'8 x 13'2 (4.47m x 4.01m)
Utility Room 6'5 x 4'6 (1.96m x 1.37m)
Downstairs WC measurements not provided
First Floor
Bedroom One 15'1 x 14'5 (4.60m x 4.39m)
Bedroom Two 15'1 x 13'5 (4.60m x 4.09m)
Bedroom Three 14'9 x 11'4 (4.50m x 3.45m)
Bedroom Four 11'3 x 14'7 (3.43m x 4.45m)
Family Bathroom 11'4 x 6'3 (3.45m x 1.91m)
En Suite 11'4 x 6'1 (3.45m x 1.85m)
Landing measurements not provided
Garden in excess of 70' (21.34m)
Council Tax Band - G (£3,741) Per Year
Location Map
Mortgage calculator
Stamp Duty calculator
Call me back:
Have any mortgage enquiries? Submit a call back request, and a member of the Temme English team will get back to you as soon as possible
























































