Spains Hall Place, Basildon, SS16
Property Summary
Temme English are thrilled to offer this incredibly rare and unique five/six bedroom, five bathroom town house situated within the well regarded "Woodlands Estate" in Kingswood! Being sold with the convenience of NO ONWARD CHAIN!
This is a fantastic opportunity for an investor or large family! The property is split generously across three floors offering well proportioned, stylish and versatile living accommodation within a short walk to Basildon Town Centre, popular local schools, Basildon Hospital & Train Station!
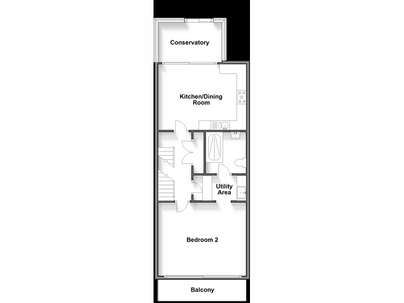
The ground floor consists of the welcoming entrance hallway with utility cupboard and modern shower room plus impressive self contained studio, this excellent space is fully tiled and incorporates a lounge diner, kitchen and ensuite shower room.
Upstairs provides the luxury kitchen diner plus another studio/living area which profits from a kitchenette, shower room and sun terrace.
The second floor hosts a large shower room with double enclosure plus four nicely proportioned bedrooms, one of which boasts another ensuite shower room.
Externally there is a driveway to the front and private rear garden! plenty of communal parking is available nearby.
Further benefits include full double glazing, updated combi boiler and plenty of storage space! Viewings are highly advised!
Incredibly Well Proportioned Five/Six Bedroom Town House
NO ONWARD CHAIN!
Four Shower Rooms
Popular Woodlands Development
Walking Distance To Basildon Town Centre, Train Station & Hospital
Excellent Investment Opportunity Or Versatile Family Home
Driveway Parking
Private Back Garden With Rear Access
Great Transport Links To The A127 & A13
Modern & Stylish Throughout With Combi Boiler
Ground Floor:
Studio 29'1 x 8'8 With Ensuite 7'7 x 6'1
Shower Room 9'5 x 2'5
Utility Cupboard
First Floor:
Kitchen Diner 15'4 x 11'8
Studio/Lounge 15'5 x 13'1 With Sun Terrace
Kitchenette 9 x 4'4
Shower Room 7'3 x 7'1
Second Floor:
Shower Room 8'7 x 6'9
Bedroom 14'7 x 9'11
Bedroom 11'4 x 5'8
Bedroom 12'5 x 8'9 With Ensuite Shower Room 5'8 x 4'3
Bedroom 9'2 x 6'2
COUNCIL TAX BAND - D (£2,159) Per Year
EPC RATING - C
Location Map
Mortgage calculator
Stamp Duty calculator
Call me back:
Have any mortgage enquiries? Submit a call back request, and a member of the Temme English team will get back to you as soon as possible














