Temme English Lettings & Management are thrilled to offer this beautifully presented, incredibly well maintained and generously proportioned three bedroom family home situated within the highly sought after location of Lee Chapel North!
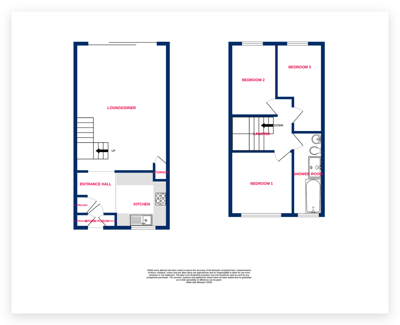
The ground floor accommodation consists of the welcoming entrance hall, luxurious kitchen plus the huge open plan kitchen diner which profits from a feature real brick wall and patio doors across the back allowing for plenty of natural light enter.
Upstairs provides three nicely proportioned bedrooms plus the stylish four piece family bathroom suite.
Externally there is a front lawn, garage and allocated parking space plus attractively landscaped back garden with rear access!
As an added bonus this lovely home backs an area of parkland and is positioned at the end of a no through road which gives it a very private feel and family friendly feel!
Located just a short walking distance to Basildon town centre, train station, variety of local schools, Basildon Hospital and offering very good transport links to the A127 & A13 viewings are highly advised!
Exceptionally Well Presented Three Bedroom Family Home
Attractively Landscaped Rear Garden With Rear Access Into Parkland!
Garage & Allocated Parking Included!
Luxury Kitchen 14'8 X 9'2
Huge Lounge Diner 20'2 x 14'7
Main Bedroom 10'1 x 9'8
Bedroom Two 14'8 x 7'2
Bedroom Three 11'8 x 7'2
Stylish Four Piece Family Bathroom Suite
Close Proximity To St Anne Line Primary School & Lee Chapel Primary School
Walking Distance To Basildon Town Centre, Hospital & Train Station
Great Transport Links To The A127, A13 & A130
COUNCIL TAX BAND - C (£1,920) Per Year
EPC RATING - C
Location Map
Mortgage calculator
Stamp Duty calculator
Call me back:
Have any mortgage enquiries? Submit a call back request, and a member of the Temme English team will get back to you as soon as possible













